Velkommen til Solfjell Hyttegrend!

SOL OG UTSIKT ØVERST I SETESDALEN

Vi er stolte av å endelig kunne presentere vårt nye hytteprosjekt høyt til fjells øverst i vakre Setesdal. Her tilbyr vi nå 38 vestvendte kvalitetshytter på store tomter med utsikt og sol fra morgen til kveld! Du får bo tett på naturen i stedet for naboen, med fantastiske sol- og utsiktsforhold.

På Solfjell bor du nær vakre naturområder du kan ha glede av hele året. Mulighetene er mange. Dessuten går sykkel- og skiløypa til Auersvann – Hovdens mest populære turmål – like utenfor døra. Og selv om det bare er 10 minutter med bil til Hovden sentrum, så får du her mye mer for pengene.

I Krag vil vi legge til rette for en god prosess og dialog der vi strekker oss langt for at du og dine skal få realisert drømmen på fjellet.

Solfjell Hyttegrend vil bestå av 38 flotte, vestvendte og innholdsrike hytter på store tomter fra ca 1-2,5 mål. Vi har vært opptatt av å gi feltet en gjennomført og helhetlig profil og egenart. Da spesielt ved at de ellers moderne hyttene henter inspirasjon og arkitektoniske referanser fra setesdalstradisjonen. For eksempel kan tomt og bygg frem- stå som et tun, mens selve hyttene vil kjennetegnes med kraftig bunnstokk, trekledning og torv på taket.

MODERNE HYTTER SOM KAN BYGGES UT ETTER BEHOV

Vi i Krag Gruppen står blant annet bak utbyggingen av Justneshalvøya i Kristiansand. Og er det en ting vi har lært og erfart gjennom årene, så er det at en god prosess med tett dialog og fleksibilitet er avgjørende for at kundene blir fornøyde. Denne erfaringen tar vi med oss til fjells. Sammen med arkitekt har vi utviklet 6 ulike hyttemodeller tilpasset arkitekt Solfjell Hyttegrend. Disse kan ytterligere tilpasses den enkeltes smak, behov og lommebok både på kort og lang sikt.

FELLES KVALITETER FOR ALLE HYTTENE

  • Store tomter med attraktiv beliggenhet tett på naturen

  • Plassering i fjellsiden med befriende utsikt så langt øyet kan se

  • Vestvendte hytter med sol fra morgen til kveld

  • Tradisjonelt uttrykk med referanser til setesdalstradisjonen

  • Kompakt torvtak-løsning, kraftig bunnstokk og trekledning

  • Store vindusflater for optimal utsikt, lys og sol

  • Høyt og luftig under taket

  • Innholdsrike hytter med masse plass og alle fasiliteter

  • Alle hyttene kan bygges ut på inntil 250 kvm BRA planløsning

  • Bærende åser gir et flott utseende innvendig

  • Vakker 1-stavs parkett i første etasje

  • Lun panel innvending

  • Behagelig vannvarme i 1. etasje mens peisen tar seg av hyttekosen

  • Mulighet for å bore energibrønn for økt komfort og lavere strømforbruk

  • Generelt god kvalitet på alt med lite vedlikehold og lang levetid

HVORFOR GÅ OVER BEKKEN ETTER VANN?

Med hytte på Solfjell bor du høyt til fjells i vakker norsk natur. Og når vidder og fjell nær sagt er nærmeste naboer, trenger du ikke dra langt for de gode naturopplevelsene. Det er bare å pakke sekken, åpne hyttedøra, spenne på seg skiene og legge ut i den preparerte skiløypa som går gjennom hytte- feltet like til Auersvann – Hovdens mest populære turmål.

Nærområdet byr på et rikt dyreliv og tilbud av turmuligheter i variert terreng både for store og små. Noen kilometer unna finner du også badeplass og ørretvann, mens den nyere 9-hulls golfbanen ligger i nærheten ved foten av Ørnefjell. Det skal ikke stå på kvaliteter og opplevelsesmuligheter i nær- området. Det er bare å koble fra og koble av. Nyte stillheten, roen og livet.

KUN 10 MINUTTER TIL SENTRUM OG SKIHEISEN

Med hytte på Solfjell får du det beste av to verdener på Hovden: Et pusterom på høyfjellet som er sentralt og samtidig befriende privat. Fra hytta er du og dine bare en svipptur unna sentrum med bil til alpinbakken, badeland, butikker og service- tilbud når dere måtte ønske det. Samtidig er det godt å vende hjem på ettermiddagen til privatlivets fred. Stor plass uten naboen for tett på. Vakker natur. Lys og sol. Krystallklar luft. Øredøvende stillhet. Og utsikt så langt øye kan se.

Det er fint med variasjon og valgmuligheter. Noen kaller det luksus. Eller er det kanskje heller frihet?

Ta kontakt med oss for en uforpliktende prat!

Tomtekart - Solfjell Hyttegrend

Oversikt over ledige og solgte tomter på Solfjell Hyttegrend.

Tomtepriser varierer mellom kr 1.200.000 og kr 1.800.000 + omkostninger.

Prisen inkluderer ikke opparbeiding av tomt. Pris på opparbeiding av tomt vil variere fra ca. kr 200.000-350.000 avhengig av tomt og hyttevalg.

Ta kontakt med oss for mer informasjon.

HYTTEMODELLENE

Vi har utviklet 6 hyttemodeller sammen med en arkitekt som et utgangspunkt - og disse kan ytterligere endres og tilpasses den enkeltes smak, behov og lommebok både på kort og lang sikt.

I Krag vil vi legge til rette for en god prosess og dialog der vi strekker oss langt for at du og dine skal få realisert drømmen på fjellet. Vi bygger sammen med kunden, og kunden har mulighet til å gjøre egne valg for hytten.

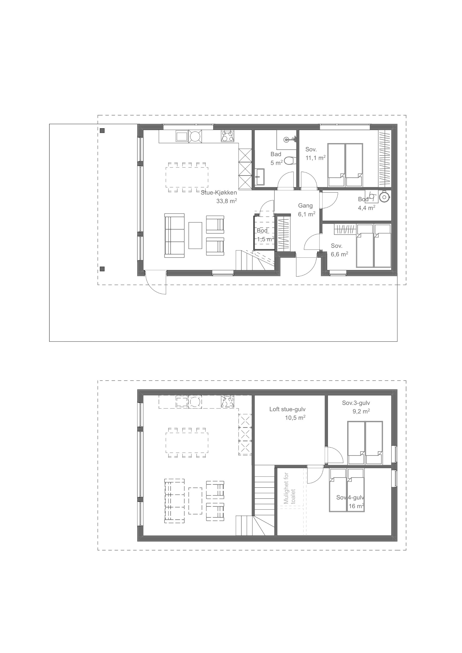
Hartevassnuten

Denne hyttemodellen er 93,8 kvm med fire soverom, ett bad, stue/kjøkken, loftstue, og terrasse. Garasje og skibod kan også bygges i tillegg.

Pris:
Komplett ferdig hytte (uten garasje, eks. tomt):  3.600.000 kr + omkostninger
Kommunale gebyr i forbindelse med vann og avløp kommer i tillegg.
Tomt kommer i tillegg. Se tomtekart for ledige tomter.


Svånuten

Denne hytten er 126,2 kvm med fire soverom, to bad, stue/kjøkken, loftstue, og terrasse. Garasje og skibod kan også bygges i tillegg.

Pris:
Komplett ferdig hytte (uten garasje, eks. tomt): 4.670.000 kr + omkostninger
Kommunale gebyr i forbindelse med vann og avløp kommer i tillegg.
Tomt kommer i tillegg. Se tomtekart for ledige tomter.

Galten

Hytten er 149,3 kvm med fire soverom, to bad, badstu, stue/kjøkken, loftstue, og terrasse. Garasje og skibod kan også bygges i tillegg.

Pris:
Komplett ferdig hytte (uten garasje, eks. tomt): 5.250.000 kr + omkostninger
Kommunale gebyr i forbindelse med vann og avløp kommer i tillegg.
Tomt kommer i tillegg. Se tomtekart for ledige tomter.

Kan også bygges uten tilbygg. Ta kontakt for mer informasjon.

Galten Utvidet

Galten Utvidet er 207,3 kvm med stue/kjøkken i midten og soveromsavdeling på hver side. Denne hyttemodellen er for eksempel perfekt for to familier som vil kjøpe hytte sammen. Hytten har ni soverom, tre bad, stue/kjøkken, loftstue, og terrasse. Garasje og skibod kan også bygges i tillegg.

Pris:
Denne hytten spesialtilpasses tomten – ta kontakt med oss for pris og mer informasjon om hyttemodell D.

Storesåta

Hytten er 120,6 kvm med fire soverom, to bad, stue/kjøkken, loftstue, og terrasse. Garasje og skibod kan også bygges i tillegg.

Pris:
Komplett ferdig hytte (uten garasje, eks. tomt): 4.500.000 kr + omkostninger
Kommunale gebyr i forbindelse med vann og avløp kommer i tillegg.
Tomt kommer i tillegg. Se tomtekart for ledige tomter.

Lislesåta

Lislesåta hyttemodell er en arealeffektiv hytte på 80,8 kvm med fire soverom, ett bad, stue/kjøkken, loftstue, og terrasse.

Pris:
Komplett ferdig hytte (uten garasje, eks. tomt): 3.100.000 kr + omkostninger
Kommunale gebyr i forbindelse med vann og avløp kommer i tillegg.
Tomt kommer i tillegg. Se tomtekart for ledige tomter.